уточняйте у продавца
Почему у нас выгодно?
Ванная комната – зона повышенной влажности. От постоянного воздействия влаги прежде всего страдает потолок, но есть решение – подвесные реечные потолки. Панели не боятся влаги, их поверхность отличается прекрасным внешним видом, позволяя создавать долговечное покрытие не только в ванной комнате, но и в других помещениях (на кухне, в прихожей и т.д.).
Типы реечных потолков
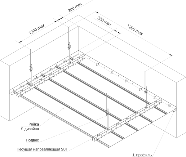
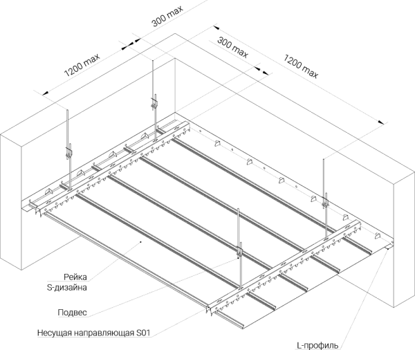
Реечные потолки предполагают использование отдельных реек в качестве основного декоративного элемента. Они скрепляются между собой направляющими-гребенками либо специальными фиксаторами-спицами (состав комплекта креплений определяется изготовителем), после окончания монтажа потолочная поверхность выглядит непрерывно.
Каталог включает различные виды потолочных систем:
- Металлические. Производятся из листового алюминия с различными видами поверхности — от матовой до зеркальной (хром, золото). Благодаря присутствию блеска панели выглядят дорого и эффектно, однако возможно появление разводов. При недостаточности естественной вентиляции в ванной комнате монтировать такие системы нецелесообразно.
- Белый (матовый или глянцевый). Самые популярные варианты для декорирования потолочного пространства. Сдержанный белый цвет органично сочетается со всеми оттенками цветовой палитры.
- Цветной. Рейки окрашиваются в широкую цветовую гамму по колористической линейке RAL, позволяя воплощать любые интерьерные идеи.
- «Под дерево». Относительно новое решение, предлагаемое некоторыми производителями. Поверхность панелей имитирует натуральную древесину.
Наш гипермаркет сотрудничает со многими заводами-производителями, предлагающими умеренные цены на свою продукцию. Расходы на приобретение комплекта для установки потолка реечного типа зависят не только от изготовителя, но и ряда факторов.
Стоимость подвесного потолка: от чего зависит
При определении стоимости учитываются площадь комнаты (определяет количество комплектующих — реек, направляющих, уголков, подвесов), ширина и длина реек, наличие или отсутствие вставок и точечных светильников. Наши менеджеры готовы сделать расчет цены подвесного реечного потолка, просто позвоните по номеру 8 (495) 324-00-05 или оставьте номер телефона в онлайн чате.
Почему стоит купить реечные потолки на нашем сайте
Гипермаркет «РемиКом» – современный магазин строительных материалов в Москве. Регулярно обновляя ассортимент, мы удовлетворяем потребности наших клиентов по всем позициям из нашего каталога, включая подвесные потолки. Наши преимущества:
- организованная логистика — продукция поступает напрямую от производителей, минуя посреднические схемы;
- умеренные расценки на все потолочные системы и комплектующие;
- возможность купить подвесные реечные потолки с доставкой (об условиях читайте здесь).
Приглашаем воспользоваться нашим сервисом и заказать все материалы на этом сайте!





