Интернет-магазин строительных материалов в Москве – «Ремиком»
Каталог
По всему сайту
По каталогу
Каталог
ЛИКВИДАЦИЯ ОСТАТКОВ
Ламинат
Панели ПВХ
Распродажа ламинированных панелий В-пласт
СТЕНОВЫЕ ПАНЕЛИ
ПАНЕЛИ ПВХ
Витопласт
3D UNIQUE Кронапласт
Ламинированные Декопласт
Для ванной
Для кухни
Потолочные
Белые
РАСПРОДАЖА | термоперевод
Сэндвич
Профили
ПАНЕЛИ МДФ
Для кухни
Для ванной
Кроностар
Евростар
Комплектующие
ЛИСТОВЫЕ ПАНЕЛИ ИЗ МДФ
Влагостойкие панели под ПЛИТКУ и МРАМОР "СТИЛЬНЫЙ ДОМ"
Стеновые под КИРПИЧ и КАМЕНЬ "СТИЛЬНЫЙ ДОМ"
Стеновые под ДОСКУ И РЕЙКУ "СТИЛЬНЫЙ ДОМ"
Стеновые из МДФ DPI (США)
Листовые МДФ влагостойкие для ванной
ВЛАГОСТОЙКИЕ СТЕНОВЫЕ ПАНЕЛИ
ПОДВЕСНЫЕ ПОТОЛКИ
Потолочная плита Армстронг
Кассетные подвесные потолки
Подвесной потолок Грильято
Реечные потолки
Комплекты реечных потолков
Реечный потолок Албес
Реечный потолок французский "S" Дизайн
Потолки реечные алюминиевые
Реечные потолки для ванной
Комплектующие для подвесных потолков
СВЕТИЛЬНИКИ ДЛЯ ПОТОЛКОВ
ЛАМИНАТ
DERBY Style
Kronon MODERN
Kronostar
GALAXY 32 КЛАСС
DE FACTO 33 класс
SALZBURG 33 КЛАСС
SYMBIO 33 КЛАСС
SYNCHRO-TEC 33 КЛАСС
Kronotex
DYNAMIC PLUS
EXQUISIT
EXQUISIT PLUS
MEGA PLUS
AMAZONE
ROBUSTO
MAMMUT PLUS
MAMMUT
AQUA ROBUSTO
HERRINGBONE
Floorwood
Expert
Epica
Maxima
Estet
Profile
Serious
Kastamonu
Floorpan Blue
Floorpan Yellow
Sommer by Tarkett
Germany 832
Kronospan
Castello 832
Floordreams Vario 1233
Super Natural Classic v4 833
Variostep Classic 832
Vintage Classic 1033
Vintage Narrow 1033
Tarkett
Robinson 833
Artisan 933
Cruise
Dynasty
Estetica
Intermezzo 833
Navigator 1233
Ballet 833
Cinema 832
Gallery 1233
Pilot 1033
Egger
CLASSIC 8/32
CLASSIC 8/32 4V (с фаской)
CLASSIC 8/33
CLASSIC AQUA+ 8/32
LARGE 8/32
KINGSIZE 8/32
KINGSIZE AQUA+ 8/32
MEDIUM 10/32
CLASSIC 12/33
Balterio
FORTISSIMO
IMPRESSIO
MAGNITUDE
QUATTRO VINTAGE
STRETTO
Kronopol
Sound
КВАРЦ-ВИНИЛОВЫЙ ЛАМИНАТ
Ламинат CronaFloor
CronaFloor STONE
CronaFloor WOOD
CronaFloor NANO
CronaFloor HERRINGBONE
Ламинат ALPINE FLOOR
Alpine floor SOLO
Alpine floor GRAND SEQUOIA
Alpine floor STONE MINERAL CORE
Alpine floor EXPRESSIVE PARQUET
Alpine floor PARQUET LIGHT
Alpine floor INTENSE
Alpine floor PREMIUM XL
Alpine floor CLASSIC
Alpine floor SEQUOIA
Alpine floor REAL WOOD
ПАРКЕТНАЯ ДОСКА
Паркетная доска Tarkett
Rumba
Salsa Premium
Salsa
Samba
Tango
Tango Art
Salsa Art
Паркетная доска Синтерос
Europarquet
Europlank
ПОДЛОЖКА ПОД ЛАМИНАТ И ПАРКЕТ
ПЛИНТУС
Пластиковые плинтуса IDEAL Komfort
Фурнитура для плинтуса
СТОЛЕШНИЦЫ ИЗ ДСП СОЮЗ
Коллекция Universal
Коллекция Classic
Коллекция Standart Pro
Коллекция Premium
Коллекция Premium +
Фурнитура для столешниц
КУХОННЫЕ ФАРТУКИ ИЗ МДФ СОЮЗ
ПОДОКОННИКИ ПВХ
Подоконники МАСТЕРПЛАСТ
Подоконники Danke
Подоконник Danke Premium
Подоконник Danke Standart
Подоконники Danke Komfort
Комплектующие для подоконников Danke
Фурнитура для подоконников
ВИНИЛОВЫЙ САЙДИНГ
Fineber
Fineber Standart
Fineber BlockHouse
Фурнитура Fineber
Софиты Fineber
Альта-Профиль
Kanada Плюс Премиум
Kanada Плюс Престиж
Альта-Профиль BlockHouse
Альта-Сайдинг (длина 3,66м)
Вспененный сайдинг Альта-Борд
Kanada Плюс Люкс
"Аляска" Классик
Альта-Профиль Софит
Доборные элементы
Docke
Виниловый Сайдинг Docke D4D серия Standart
Сайдинг Docke D5C серия Standart Елочка
Сайдинг Docke D4.5D серия Premium
Сайдинг Docke серия Premium профилированный брус D6S
Виниловый сайдинг Docke Блок Хаус D4.7T серия Premium
Универсальные аксессуары серий Premium и Standart
Серия LUX Брус D6S
Блок Хаус D4.7T серия LUX
Софит Т4 Premium
Софит Т4 Docke Standard
Софит Т4 Lux 
Доборные элементы серия LUX
Grand line
Grand Line Блок-хаус Amerika D4,8
Grand Line Tundra
Grand Line Amerika D4.4
Grand Line Amerika D4 (slim)
Grand Line Акриловый (АСА)
Доборные элементы
Софиты Grand Line Т4
Софиты Grand Line Premium Estetic
Дачный
H-профиль (соединитель) FineBer Дачный
Фурнитура для сайдинга (эконом)
Эконом
ФАСАДНЫЕ ПАНЕЛИ
Фасадные панели Альта-Профиль
Кирпич антик
Камень скалистый
Гранит
Каньон
Фасадная плитка
Камень бутовый
Кирпич коричневый
Камень коричневый
Фагот
Кирпич клинкерный
Коллекция Пражский камень
Коллекция Венеция
Коллекция Венецианский камень
Коллекция Неаполитанский камень
Коллекция Флорентийский камень
Камень Шотландский
Кирпич Рижский
Комби
Неаполь
Туф
Шотландия
Общая фурнитура к фасадным панелям
Система отделки углов Альта Профиль
Камень серый
Кирпич красный
Фасадные панели FineBer
Камень
Камень дикий
Камень крупный
Камень природный
Кирпич
Скала
Фасадные панели Docke-R
Flemish
Edel
Berg
Burg
Stein
Klinker
Fels
Stern
Аксессуары
Slate
Фасадные панели Фасайдинг "Дачный"
КИРПИЧ КЛИНКЕРНЫЙ Фасайдинг "Дачный"
СКАЛА Фасайдинг "Дачный"
БАВАРСКИЙ КИРПИЧ Фасайдинг "Дачный"
ДОЛОМИТ Фасайдинг "Дачный"
СКОЛ 3D-Facture Фасайдинг "Дачный"
ТУФ 3D-Facture Фасайдинг "Дачный"
Фасадные панели Grand Line
Клинкерный кирпич
Крупный камень
Состаренный кирпич
Сланец
Grand Line Аксессуары к Фасадной панели
"Я-Фасад" Крымский Сланец
"Я-Фасад" Сибирская Дранка
"Я-Фасад" Екатерининский Камень
"Я-Фасад" Демидовский Кирпич
"Я-Фасад" Скала
ВОДОСТОЧНАЯ СИСТЕМА
Grand Line
FINEBER
ПВХ ПЛИТКА
ПВХ плитка Tarkett
PROGRESSIVE HOUSE
Blues
Lounge
New Age
ГИПСОКАРТОН И ПРОФИЛИ
СУХИЕ СМЕСИ
ТЕРРАСНАЯ ДОСКА ДПК EuroDeck
Доборные элементы и крепёж
Планка универсальная ДПК
DOUBLE
New
Old Style
Uno
Уголок торцевой
Акции
О компании
Бренды
Оплата
Доставка и самовывоз
Статьи
Контакты
+7 495 324-00-05
Заказать звонок
Задать вопрос
Войти
  • Корзина0
  • Избранные товары0
  • Сравнение товаров0
zakaz@remycom.ru
Москва, Новорязанское ш. 25км, строение 16, павильон К3
Интернет-магазин строительных материалов в Москве – «Ремиком»
Каталог
По всему сайту
По каталогу
+7 495 324-00-05
Заказать звонок
Войти
Сравнение0
Избранные товары 0
Корзина 0
Каталог
ЛИКВИДАЦИЯ ОСТАТКОВ
СТЕНОВЫЕ ПАНЕЛИ
ПОДВЕСНЫЕ ПОТОЛКИ
СВЕТИЛЬНИКИ ДЛЯ ПОТОЛКОВ
ЛАМИНАТ
КВАРЦ-ВИНИЛОВЫЙ ЛАМИНАТ
ПАРКЕТНАЯ ДОСКА
ПОДЛОЖКА ПОД ЛАМИНАТ И ПАРКЕТ
ПЛИНТУС
СТОЛЕШНИЦЫ ИЗ ДСП СОЮЗ
КУХОННЫЕ ФАРТУКИ ИЗ МДФ СОЮЗ
ПОДОКОННИКИ ПВХ
ВИНИЛОВЫЙ САЙДИНГ
ФАСАДНЫЕ ПАНЕЛИ
ВОДОСТОЧНАЯ СИСТЕМА
ПВХ ПЛИТКА
ГИПСОКАРТОН И ПРОФИЛИ
СУХИЕ СМЕСИ
ТЕРРАСНАЯ ДОСКА ДПК EuroDeck
    • Ламинат
      Ламинат
    • Панели ПВХ
      Панели ПВХ
      • Распродажа ламинированных панелий В-пласт
    • ПАНЕЛИ ПВХ
      ПАНЕЛИ ПВХ
      • Витопласт
      • 3D UNIQUE Кронапласт
      • Ламинированные Декопласт
      • Для ванной
      • Для кухни
      • Потолочные
      • Белые
      • РАСПРОДАЖА | термоперевод
      • Сэндвич
      • Профили
      • +  ЕЩЕ 2
    • ПАНЕЛИ МДФ
      ПАНЕЛИ МДФ
      • Для кухни
      • Для ванной
      • Кроностар
      • Евростар
      • Комплектующие
    • ЛИСТОВЫЕ ПАНЕЛИ ИЗ МДФ
      ЛИСТОВЫЕ ПАНЕЛИ ИЗ МДФ
      • Влагостойкие панели под ПЛИТКУ и МРАМОР "СТИЛЬНЫЙ ДОМ"
      • Стеновые под КИРПИЧ и КАМЕНЬ "СТИЛЬНЫЙ ДОМ"
      • Стеновые под ДОСКУ И РЕЙКУ "СТИЛЬНЫЙ ДОМ"
      • Стеновые из МДФ DPI (США)
      • Листовые МДФ влагостойкие для ванной
    • ВЛАГОСТОЙКИЕ СТЕНОВЫЕ ПАНЕЛИ
      ВЛАГОСТОЙКИЕ СТЕНОВЫЕ ПАНЕЛИ
    • Потолочная плита Армстронг
      Потолочная плита Армстронг
    • Кассетные подвесные потолки
      Кассетные подвесные потолки
    • Подвесной потолок Грильято
      Подвесной потолок Грильято
    • Реечные потолки
      Реечные потолки
      • Комплекты реечных потолков
      • Реечный потолок Албес
      • Реечный потолок французский "S" Дизайн
      • Потолки реечные алюминиевые
      • Реечные потолки для ванной
    • Комплектующие для подвесных потолков
      Комплектующие для подвесных потолков
    • DERBY Style
      DERBY Style
    • Kronon MODERN
      Kronon MODERN
    • Kronostar
      Kronostar
      • GALAXY 32 КЛАСС
      • DE FACTO 33 класс
      • SALZBURG 33 КЛАСС
      • SYMBIO 33 КЛАСС
      • SYNCHRO-TEC 33 КЛАСС
    • Kronotex
      Kronotex
      • DYNAMIC PLUS
      • EXQUISIT
      • EXQUISIT PLUS
      • MEGA PLUS
      • AMAZONE
      • ROBUSTO
      • MAMMUT PLUS
      • MAMMUT
      • AQUA ROBUSTO
      • HERRINGBONE
      • +  ЕЩЕ 2
    • Floorwood
      Floorwood
      • Expert
      • Epica
      • Maxima
      • Estet
      • Profile
      • Serious
    • Kastamonu
      Kastamonu
      • Floorpan Blue
      • Floorpan Yellow
    • Sommer by Tarkett
      Sommer by Tarkett
      • Germany 832
    • Kronospan
      Kronospan
      • Castello 832
      • Floordreams Vario 1233
      • Super Natural Classic v4 833
      • Variostep Classic 832
      • Vintage Classic 1033
      • Vintage Narrow 1033
    • Tarkett
      Tarkett
      • Robinson 833
      • Artisan 933
      • Cruise
      • Dynasty
      • Estetica
      • Intermezzo 833
      • Navigator 1233
      • Ballet 833
      • Cinema 832
      • Gallery 1233
      • Pilot 1033
      • +  ЕЩЕ 3
    • Egger
      Egger
      • CLASSIC 8/32
      • CLASSIC 8/32 4V (с фаской)
      • CLASSIC 8/33
      • CLASSIC AQUA+ 8/32
      • LARGE 8/32
      • KINGSIZE 8/32
      • KINGSIZE AQUA+ 8/32
      • MEDIUM 10/32
      • CLASSIC 12/33
      • +  ЕЩЕ 1
    • Balterio
      Balterio
      • FORTISSIMO
      • IMPRESSIO
      • MAGNITUDE
      • QUATTRO VINTAGE
      • STRETTO
    • Kronopol
      Kronopol
      • Sound
    • Ламинат CronaFloor
      Ламинат CronaFloor
      • CronaFloor STONE
      • CronaFloor WOOD
      • CronaFloor NANO
      • CronaFloor HERRINGBONE
    • Ламинат ALPINE FLOOR
      Ламинат ALPINE FLOOR
      • Alpine floor SOLO
      • Alpine floor GRAND SEQUOIA
      • Alpine floor STONE MINERAL CORE
      • Alpine floor EXPRESSIVE PARQUET
      • Alpine floor PARQUET LIGHT
      • Alpine floor INTENSE
      • Alpine floor PREMIUM XL
      • Alpine floor CLASSIC
      • Alpine floor SEQUOIA
      • Alpine floor REAL WOOD
      • +  ЕЩЕ 2
    • Паркетная доска Tarkett
      Паркетная доска Tarkett
      • Rumba
      • Salsa Premium
      • Salsa
      • Samba
      • Tango
      • Tango Art
      • Salsa Art
    • Паркетная доска Синтерос
      Паркетная доска Синтерос
      • Europarquet
      • Europlank
    • Пластиковые плинтуса IDEAL Komfort
      Пластиковые плинтуса IDEAL Komfort
    • Фурнитура для плинтуса
      Фурнитура для плинтуса
    • Коллекция Universal
      Коллекция Universal
    • Коллекция Classic
      Коллекция Classic
    • Коллекция Standart Pro
      Коллекция Standart Pro
    • Коллекция Premium
      Коллекция Premium
    • Коллекция Premium +
      Коллекция Premium +
    • Фурнитура для столешниц
      Фурнитура для столешниц
    • Подоконники МАСТЕРПЛАСТ
      Подоконники МАСТЕРПЛАСТ
    • Подоконники Danke
      Подоконники Danke
      • Подоконник Danke Premium
      • Подоконник Danke Standart
      • Подоконники Danke Komfort
      • Комплектующие для подоконников Danke
    • Фурнитура для подоконников
      Фурнитура для подоконников
    • Fineber
      Fineber
      • Fineber Standart
      • Fineber BlockHouse
      • Фурнитура Fineber
      • Софиты Fineber
    • Альта-Профиль
      Альта-Профиль
      • Kanada Плюс Премиум
      • Kanada Плюс Престиж
      • Альта-Профиль BlockHouse
      • Альта-Сайдинг (длина 3,66м)
      • Вспененный сайдинг Альта-Борд
      • Kanada Плюс Люкс
      • "Аляска" Классик
      • Альта-Профиль Софит
      • Доборные элементы
      • +  ЕЩЕ 1
    • Docke
      Docke
      • Виниловый Сайдинг Docke D4D серия Standart
      • Сайдинг Docke D5C серия Standart Елочка
      • Сайдинг Docke D4.5D серия Premium
      • Сайдинг Docke серия Premium профилированный брус D6S
      • Виниловый сайдинг Docke Блок Хаус D4.7T серия Premium
      • Универсальные аксессуары серий Premium и Standart
      • Серия LUX Брус D6S
      • Блок Хаус D4.7T серия LUX
      • Софит Т4 Premium
      • Софит Т4 Docke Standard
      • Софит Т4 Lux 
      • Доборные элементы серия LUX
      • +  ЕЩЕ 4
    • Grand line
      Grand line
      • Grand Line Блок-хаус Amerika D4,8
      • Grand Line Tundra
      • Grand Line Amerika D4.4
      • Grand Line Amerika D4 (slim)
      • Grand Line Акриловый (АСА)
      • Доборные элементы
      • Софиты Grand Line Т4
      • Софиты Grand Line Premium Estetic
    • Дачный
      Дачный
      • H-профиль (соединитель) FineBer Дачный
    • Фурнитура для сайдинга (эконом)
      Фурнитура для сайдинга (эконом)
      • Эконом
    • Фасадные панели Альта-Профиль
      Фасадные панели Альта-Профиль
      • Кирпич антик
      • Камень скалистый
      • Гранит
      • Каньон
      • Фасадная плитка
      • Камень бутовый
      • Кирпич коричневый
      • Камень коричневый
      • Фагот
      • Кирпич клинкерный
      • Коллекция Пражский камень
      • Коллекция Венеция
      • Коллекция Венецианский камень
      • Коллекция Неаполитанский камень
      • Коллекция Флорентийский камень
      • Камень Шотландский
      • Кирпич Рижский
      • Комби
      • Неаполь
      • Туф
      • Шотландия
      • Общая фурнитура к фасадным панелям
      • Система отделки углов Альта Профиль
      • Камень серый
      • Кирпич красный
      • +  ЕЩЕ 17
    • Фасадные панели FineBer
      Фасадные панели FineBer
      • Камень
      • Камень дикий
      • Камень крупный
      • Камень природный
      • Кирпич
      • Скала
    • Фасадные панели Docke-R
      Фасадные панели Docke-R
      • Flemish
      • Edel
      • Berg
      • Burg
      • Stein
      • Klinker
      • Fels
      • Stern
      • Аксессуары
      • Slate
      • +  ЕЩЕ 2
    • Фасадные панели Фасайдинг "Дачный"
      Фасадные панели Фасайдинг "Дачный"
      • КИРПИЧ КЛИНКЕРНЫЙ Фасайдинг "Дачный"
      • СКАЛА Фасайдинг "Дачный"
      • БАВАРСКИЙ КИРПИЧ Фасайдинг "Дачный"
      • ДОЛОМИТ Фасайдинг "Дачный"
      • СКОЛ 3D-Facture Фасайдинг "Дачный"
      • ТУФ 3D-Facture Фасайдинг "Дачный"
    • Фасадные панели Grand Line
      Фасадные панели Grand Line
      • Клинкерный кирпич
      • Крупный камень
      • Состаренный кирпич
      • Сланец
      • Grand Line Аксессуары к Фасадной панели
      • "Я-Фасад" Крымский Сланец
      • "Я-Фасад" Сибирская Дранка
      • "Я-Фасад" Екатерининский Камень
      • "Я-Фасад" Демидовский Кирпич
      • "Я-Фасад" Скала
      • +  ЕЩЕ 2
    • Grand Line
      Grand Line
    • FINEBER
      FINEBER
    • ПВХ плитка Tarkett
      ПВХ плитка Tarkett
      • PROGRESSIVE HOUSE
      • Blues
      • Lounge
      • New Age
    • Доборные элементы и крепёж
      Доборные элементы и крепёж
    • Планка универсальная ДПК
      Планка универсальная ДПК
    • DOUBLE
    • New
    • Old Style
    • Uno
      Uno
    • Уголок торцевой
Акции
О компании
Бренды
Оплата
Доставка и самовывоз
Статьи
Контакты
+  ЕЩЕ
    Интернет-магазин строительных материалов в Москве – «Ремиком»
    Каталог
    ЛИКВИДАЦИЯ ОСТАТКОВ
    СТЕНОВЫЕ ПАНЕЛИ
    ПОДВЕСНЫЕ ПОТОЛКИ
    СВЕТИЛЬНИКИ ДЛЯ ПОТОЛКОВ
    ЛАМИНАТ
    КВАРЦ-ВИНИЛОВЫЙ ЛАМИНАТ
    ПАРКЕТНАЯ ДОСКА
    ПОДЛОЖКА ПОД ЛАМИНАТ И ПАРКЕТ
    ПЛИНТУС
    СТОЛЕШНИЦЫ ИЗ ДСП СОЮЗ
    КУХОННЫЕ ФАРТУКИ ИЗ МДФ СОЮЗ
    ПОДОКОННИКИ ПВХ
    ВИНИЛОВЫЙ САЙДИНГ
    ФАСАДНЫЕ ПАНЕЛИ
    ВОДОСТОЧНАЯ СИСТЕМА
    ПВХ ПЛИТКА
    ГИПСОКАРТОН И ПРОФИЛИ
    СУХИЕ СМЕСИ
    ТЕРРАСНАЯ ДОСКА ДПК EuroDeck
      • Ламинат
        Ламинат
      • Панели ПВХ
        Панели ПВХ
        • Распродажа ламинированных панелий В-пласт
      • ПАНЕЛИ ПВХ
        ПАНЕЛИ ПВХ
        • Витопласт
        • 3D UNIQUE Кронапласт
        • Ламинированные Декопласт
        • Для ванной
        • Для кухни
        • Потолочные
        • Белые
        • РАСПРОДАЖА | термоперевод
        • Сэндвич
        • Профили
        • +  ЕЩЕ 2
      • ПАНЕЛИ МДФ
        ПАНЕЛИ МДФ
        • Для кухни
        • Для ванной
        • Кроностар
        • Евростар
        • Комплектующие
      • ЛИСТОВЫЕ ПАНЕЛИ ИЗ МДФ
        ЛИСТОВЫЕ ПАНЕЛИ ИЗ МДФ
        • Влагостойкие панели под ПЛИТКУ и МРАМОР "СТИЛЬНЫЙ ДОМ"
        • Стеновые под КИРПИЧ и КАМЕНЬ "СТИЛЬНЫЙ ДОМ"
        • Стеновые под ДОСКУ И РЕЙКУ "СТИЛЬНЫЙ ДОМ"
        • Стеновые из МДФ DPI (США)
        • Листовые МДФ влагостойкие для ванной
      • ВЛАГОСТОЙКИЕ СТЕНОВЫЕ ПАНЕЛИ
        ВЛАГОСТОЙКИЕ СТЕНОВЫЕ ПАНЕЛИ
      • Потолочная плита Армстронг
        Потолочная плита Армстронг
      • Кассетные подвесные потолки
        Кассетные подвесные потолки
      • Подвесной потолок Грильято
        Подвесной потолок Грильято
      • Реечные потолки
        Реечные потолки
        • Комплекты реечных потолков
        • Реечный потолок Албес
        • Реечный потолок французский "S" Дизайн
        • Потолки реечные алюминиевые
        • Реечные потолки для ванной
      • Комплектующие для подвесных потолков
        Комплектующие для подвесных потолков
      • DERBY Style
        DERBY Style
      • Kronon MODERN
        Kronon MODERN
      • Kronostar
        Kronostar
        • GALAXY 32 КЛАСС
        • DE FACTO 33 класс
        • SALZBURG 33 КЛАСС
        • SYMBIO 33 КЛАСС
        • SYNCHRO-TEC 33 КЛАСС
      • Kronotex
        Kronotex
        • DYNAMIC PLUS
        • EXQUISIT
        • EXQUISIT PLUS
        • MEGA PLUS
        • AMAZONE
        • ROBUSTO
        • MAMMUT PLUS
        • MAMMUT
        • AQUA ROBUSTO
        • HERRINGBONE
        • +  ЕЩЕ 2
      • Floorwood
        Floorwood
        • Expert
        • Epica
        • Maxima
        • Estet
        • Profile
        • Serious
      • Kastamonu
        Kastamonu
        • Floorpan Blue
        • Floorpan Yellow
      • Sommer by Tarkett
        Sommer by Tarkett
        • Germany 832
      • Kronospan
        Kronospan
        • Castello 832
        • Floordreams Vario 1233
        • Super Natural Classic v4 833
        • Variostep Classic 832
        • Vintage Classic 1033
        • Vintage Narrow 1033
      • Tarkett
        Tarkett
        • Robinson 833
        • Artisan 933
        • Cruise
        • Dynasty
        • Estetica
        • Intermezzo 833
        • Navigator 1233
        • Ballet 833
        • Cinema 832
        • Gallery 1233
        • Pilot 1033
        • +  ЕЩЕ 3
      • Egger
        Egger
        • CLASSIC 8/32
        • CLASSIC 8/32 4V (с фаской)
        • CLASSIC 8/33
        • CLASSIC AQUA+ 8/32
        • LARGE 8/32
        • KINGSIZE 8/32
        • KINGSIZE AQUA+ 8/32
        • MEDIUM 10/32
        • CLASSIC 12/33
        • +  ЕЩЕ 1
      • Balterio
        Balterio
        • FORTISSIMO
        • IMPRESSIO
        • MAGNITUDE
        • QUATTRO VINTAGE
        • STRETTO
      • Kronopol
        Kronopol
        • Sound
      • Ламинат CronaFloor
        Ламинат CronaFloor
        • CronaFloor STONE
        • CronaFloor WOOD
        • CronaFloor NANO
        • CronaFloor HERRINGBONE
      • Ламинат ALPINE FLOOR
        Ламинат ALPINE FLOOR
        • Alpine floor SOLO
        • Alpine floor GRAND SEQUOIA
        • Alpine floor STONE MINERAL CORE
        • Alpine floor EXPRESSIVE PARQUET
        • Alpine floor PARQUET LIGHT
        • Alpine floor INTENSE
        • Alpine floor PREMIUM XL
        • Alpine floor CLASSIC
        • Alpine floor SEQUOIA
        • Alpine floor REAL WOOD
        • +  ЕЩЕ 2
      • Паркетная доска Tarkett
        Паркетная доска Tarkett
        • Rumba
        • Salsa Premium
        • Salsa
        • Samba
        • Tango
        • Tango Art
        • Salsa Art
      • Паркетная доска Синтерос
        Паркетная доска Синтерос
        • Europarquet
        • Europlank
      • Пластиковые плинтуса IDEAL Komfort
        Пластиковые плинтуса IDEAL Komfort
      • Фурнитура для плинтуса
        Фурнитура для плинтуса
      • Коллекция Universal
        Коллекция Universal
      • Коллекция Classic
        Коллекция Classic
      • Коллекция Standart Pro
        Коллекция Standart Pro
      • Коллекция Premium
        Коллекция Premium
      • Коллекция Premium +
        Коллекция Premium +
      • Фурнитура для столешниц
        Фурнитура для столешниц
      • Подоконники МАСТЕРПЛАСТ
        Подоконники МАСТЕРПЛАСТ
      • Подоконники Danke
        Подоконники Danke
        • Подоконник Danke Premium
        • Подоконник Danke Standart
        • Подоконники Danke Komfort
        • Комплектующие для подоконников Danke
      • Фурнитура для подоконников
        Фурнитура для подоконников
      • Fineber
        Fineber
        • Fineber Standart
        • Fineber BlockHouse
        • Фурнитура Fineber
        • Софиты Fineber
      • Альта-Профиль
        Альта-Профиль
        • Kanada Плюс Премиум
        • Kanada Плюс Престиж
        • Альта-Профиль BlockHouse
        • Альта-Сайдинг (длина 3,66м)
        • Вспененный сайдинг Альта-Борд
        • Kanada Плюс Люкс
        • "Аляска" Классик
        • Альта-Профиль Софит
        • Доборные элементы
        • +  ЕЩЕ 1
      • Docke
        Docke
        • Виниловый Сайдинг Docke D4D серия Standart
        • Сайдинг Docke D5C серия Standart Елочка
        • Сайдинг Docke D4.5D серия Premium
        • Сайдинг Docke серия Premium профилированный брус D6S
        • Виниловый сайдинг Docke Блок Хаус D4.7T серия Premium
        • Универсальные аксессуары серий Premium и Standart
        • Серия LUX Брус D6S
        • Блок Хаус D4.7T серия LUX
        • Софит Т4 Premium
        • Софит Т4 Docke Standard
        • Софит Т4 Lux 
        • Доборные элементы серия LUX
        • +  ЕЩЕ 4
      • Grand line
        Grand line
        • Grand Line Блок-хаус Amerika D4,8
        • Grand Line Tundra
        • Grand Line Amerika D4.4
        • Grand Line Amerika D4 (slim)
        • Grand Line Акриловый (АСА)
        • Доборные элементы
        • Софиты Grand Line Т4
        • Софиты Grand Line Premium Estetic
      • Дачный
        Дачный
        • H-профиль (соединитель) FineBer Дачный
      • Фурнитура для сайдинга (эконом)
        Фурнитура для сайдинга (эконом)
        • Эконом
      • Фасадные панели Альта-Профиль
        Фасадные панели Альта-Профиль
        • Кирпич антик
        • Камень скалистый
        • Гранит
        • Каньон
        • Фасадная плитка
        • Камень бутовый
        • Кирпич коричневый
        • Камень коричневый
        • Фагот
        • Кирпич клинкерный
        • Коллекция Пражский камень
        • Коллекция Венеция
        • Коллекция Венецианский камень
        • Коллекция Неаполитанский камень
        • Коллекция Флорентийский камень
        • Камень Шотландский
        • Кирпич Рижский
        • Комби
        • Неаполь
        • Туф
        • Шотландия
        • Общая фурнитура к фасадным панелям
        • Система отделки углов Альта Профиль
        • Камень серый
        • Кирпич красный
        • +  ЕЩЕ 17
      • Фасадные панели FineBer
        Фасадные панели FineBer
        • Камень
        • Камень дикий
        • Камень крупный
        • Камень природный
        • Кирпич
        • Скала
      • Фасадные панели Docke-R
        Фасадные панели Docke-R
        • Flemish
        • Edel
        • Berg
        • Burg
        • Stein
        • Klinker
        • Fels
        • Stern
        • Аксессуары
        • Slate
        • +  ЕЩЕ 2
      • Фасадные панели Фасайдинг "Дачный"
        Фасадные панели Фасайдинг "Дачный"
        • КИРПИЧ КЛИНКЕРНЫЙ Фасайдинг "Дачный"
        • СКАЛА Фасайдинг "Дачный"
        • БАВАРСКИЙ КИРПИЧ Фасайдинг "Дачный"
        • ДОЛОМИТ Фасайдинг "Дачный"
        • СКОЛ 3D-Facture Фасайдинг "Дачный"
        • ТУФ 3D-Facture Фасайдинг "Дачный"
      • Фасадные панели Grand Line
        Фасадные панели Grand Line
        • Клинкерный кирпич
        • Крупный камень
        • Состаренный кирпич
        • Сланец
        • Grand Line Аксессуары к Фасадной панели
        • "Я-Фасад" Крымский Сланец
        • "Я-Фасад" Сибирская Дранка
        • "Я-Фасад" Екатерининский Камень
        • "Я-Фасад" Демидовский Кирпич
        • "Я-Фасад" Скала
        • +  ЕЩЕ 2
      • Grand Line
        Grand Line
      • FINEBER
        FINEBER
      • ПВХ плитка Tarkett
        ПВХ плитка Tarkett
        • PROGRESSIVE HOUSE
        • Blues
        • Lounge
        • New Age
      • Доборные элементы и крепёж
        Доборные элементы и крепёж
      • Планка универсальная ДПК
        Планка универсальная ДПК
      • DOUBLE
      • New
      • Old Style
      • Uno
        Uno
      • Уголок торцевой
    Акции
    О компании
    Бренды
    Оплата
    Доставка и самовывоз
    Статьи
    Контакты
    +  ЕЩЕ
      Сравнение0
      Избранные товары 0
      Корзина 0
      Интернет-магазин строительных материалов в Москве – «Ремиком»
      Сравнение0 Избранные товары 0 Корзина 0
      Телефоны
      +7 495 324-00-05
      Заказать звонок
      • Каталог
        • Назад
        • Каталог
        • ЛИКВИДАЦИЯ ОСТАТКОВ
          • Назад
          • ЛИКВИДАЦИЯ ОСТАТКОВ
          • Ламинат
          • Панели ПВХ
            • Назад
            • Панели ПВХ
            • Распродажа ламинированных панелий В-пласт
        • СТЕНОВЫЕ ПАНЕЛИ
          • Назад
          • СТЕНОВЫЕ ПАНЕЛИ
          • ПАНЕЛИ ПВХ
            • Назад
            • ПАНЕЛИ ПВХ
            • Витопласт
            • 3D UNIQUE Кронапласт
            • Ламинированные Декопласт
            • Для ванной
            • Для кухни
            • Потолочные
            • Белые
            • РАСПРОДАЖА | термоперевод
            • Сэндвич
            • Профили
          • ПАНЕЛИ МДФ
            • Назад
            • ПАНЕЛИ МДФ
            • Для кухни
            • Для ванной
            • Кроностар
            • Евростар
            • Комплектующие
          • ЛИСТОВЫЕ ПАНЕЛИ ИЗ МДФ
            • Назад
            • ЛИСТОВЫЕ ПАНЕЛИ ИЗ МДФ
            • Влагостойкие панели под ПЛИТКУ и МРАМОР "СТИЛЬНЫЙ ДОМ"
            • Стеновые под КИРПИЧ и КАМЕНЬ "СТИЛЬНЫЙ ДОМ"
            • Стеновые под ДОСКУ И РЕЙКУ "СТИЛЬНЫЙ ДОМ"
            • Стеновые из МДФ DPI (США)
            • Листовые МДФ влагостойкие для ванной
          • ВЛАГОСТОЙКИЕ СТЕНОВЫЕ ПАНЕЛИ
        • ПОДВЕСНЫЕ ПОТОЛКИ
          • Назад
          • ПОДВЕСНЫЕ ПОТОЛКИ
          • Потолочная плита Армстронг
          • Кассетные подвесные потолки
          • Подвесной потолок Грильято
          • Реечные потолки
            • Назад
            • Реечные потолки
            • Комплекты реечных потолков
            • Реечный потолок Албес
            • Реечный потолок французский "S" Дизайн
            • Потолки реечные алюминиевые
            • Реечные потолки для ванной
          • Комплектующие для подвесных потолков
        • СВЕТИЛЬНИКИ ДЛЯ ПОТОЛКОВ
        • ЛАМИНАТ
          • Назад
          • ЛАМИНАТ
          • DERBY Style
          • Kronon MODERN
          • Kronostar
            • Назад
            • Kronostar
            • GALAXY 32 КЛАСС
            • DE FACTO 33 класс
            • SALZBURG 33 КЛАСС
            • SYMBIO 33 КЛАСС
            • SYNCHRO-TEC 33 КЛАСС
          • Kronotex
            • Назад
            • Kronotex
            • DYNAMIC PLUS
            • EXQUISIT
            • EXQUISIT PLUS
            • MEGA PLUS
            • AMAZONE
            • ROBUSTO
            • MAMMUT PLUS
            • MAMMUT
            • AQUA ROBUSTO
            • HERRINGBONE
          • Floorwood
            • Назад
            • Floorwood
            • Expert
            • Epica
            • Maxima
            • Estet
            • Profile
            • Serious
          • Kastamonu
            • Назад
            • Kastamonu
            • Floorpan Blue
            • Floorpan Yellow
          • Sommer by Tarkett
            • Назад
            • Sommer by Tarkett
            • Germany 832
          • Kronospan
            • Назад
            • Kronospan
            • Castello 832
            • Floordreams Vario 1233
            • Super Natural Classic v4 833
            • Variostep Classic 832
            • Vintage Classic 1033
            • Vintage Narrow 1033
          • Tarkett
            • Назад
            • Tarkett
            • Robinson 833
            • Artisan 933
            • Cruise
            • Dynasty
            • Estetica
            • Intermezzo 833
            • Navigator 1233
            • Ballet 833
            • Cinema 832
            • Gallery 1233
            • Pilot 1033
          • Egger
            • Назад
            • Egger
            • CLASSIC 8/32
            • CLASSIC 8/32 4V (с фаской)
            • CLASSIC 8/33
            • CLASSIC AQUA+ 8/32
            • LARGE 8/32
            • KINGSIZE 8/32
            • KINGSIZE AQUA+ 8/32
            • MEDIUM 10/32
            • CLASSIC 12/33
          • Balterio
            • Назад
            • Balterio
            • FORTISSIMO
            • IMPRESSIO
            • MAGNITUDE
            • QUATTRO VINTAGE
            • STRETTO
          • Kronopol
            • Назад
            • Kronopol
            • Sound
        • КВАРЦ-ВИНИЛОВЫЙ ЛАМИНАТ
          • Назад
          • КВАРЦ-ВИНИЛОВЫЙ ЛАМИНАТ
          • Ламинат CronaFloor
            • Назад
            • Ламинат CronaFloor
            • CronaFloor STONE
            • CronaFloor WOOD
            • CronaFloor NANO
            • CronaFloor HERRINGBONE
          • Ламинат ALPINE FLOOR
            • Назад
            • Ламинат ALPINE FLOOR
            • Alpine floor SOLO
            • Alpine floor GRAND SEQUOIA
            • Alpine floor STONE MINERAL CORE
            • Alpine floor EXPRESSIVE PARQUET
            • Alpine floor PARQUET LIGHT
            • Alpine floor INTENSE
            • Alpine floor PREMIUM XL
            • Alpine floor CLASSIC
            • Alpine floor SEQUOIA
            • Alpine floor REAL WOOD
        • ПАРКЕТНАЯ ДОСКА
          • Назад
          • ПАРКЕТНАЯ ДОСКА
          • Паркетная доска Tarkett
            • Назад
            • Паркетная доска Tarkett
            • Rumba
            • Salsa Premium
            • Salsa
            • Samba
            • Tango
            • Tango Art
            • Salsa Art
          • Паркетная доска Синтерос
            • Назад
            • Паркетная доска Синтерос
            • Europarquet
            • Europlank
        • ПОДЛОЖКА ПОД ЛАМИНАТ И ПАРКЕТ
        • ПЛИНТУС
          • Назад
          • ПЛИНТУС
          • Пластиковые плинтуса IDEAL Komfort
          • Фурнитура для плинтуса
        • СТОЛЕШНИЦЫ ИЗ ДСП СОЮЗ
          • Назад
          • СТОЛЕШНИЦЫ ИЗ ДСП СОЮЗ
          • Коллекция Universal
          • Коллекция Classic
          • Коллекция Standart Pro
          • Коллекция Premium
          • Коллекция Premium +
          • Фурнитура для столешниц
        • КУХОННЫЕ ФАРТУКИ ИЗ МДФ СОЮЗ
        • ПОДОКОННИКИ ПВХ
          • Назад
          • ПОДОКОННИКИ ПВХ
          • Подоконники МАСТЕРПЛАСТ
          • Подоконники Danke
            • Назад
            • Подоконники Danke
            • Подоконник Danke Premium
            • Подоконник Danke Standart
            • Подоконники Danke Komfort
            • Комплектующие для подоконников Danke
          • Фурнитура для подоконников
        • ВИНИЛОВЫЙ САЙДИНГ
          • Назад
          • ВИНИЛОВЫЙ САЙДИНГ
          • Fineber
            • Назад
            • Fineber
            • Fineber Standart
            • Fineber BlockHouse
            • Фурнитура Fineber
            • Софиты Fineber
          • Альта-Профиль
            • Назад
            • Альта-Профиль
            • Kanada Плюс Премиум
            • Kanada Плюс Престиж
            • Альта-Профиль BlockHouse
            • Альта-Сайдинг (длина 3,66м)
            • Вспененный сайдинг Альта-Борд
            • Kanada Плюс Люкс
            • "Аляска" Классик
            • Альта-Профиль Софит
            • Доборные элементы
          • Docke
            • Назад
            • Docke
            • Виниловый Сайдинг Docke D4D серия Standart
            • Сайдинг Docke D5C серия Standart Елочка
            • Сайдинг Docke D4.5D серия Premium
            • Сайдинг Docke серия Premium профилированный брус D6S
            • Виниловый сайдинг Docke Блок Хаус D4.7T серия Premium
            • Универсальные аксессуары серий Premium и Standart
            • Серия LUX Брус D6S
            • Блок Хаус D4.7T серия LUX
            • Софит Т4 Premium
            • Софит Т4 Docke Standard
            • Софит Т4 Lux 
            • Доборные элементы серия LUX
          • Grand line
            • Назад
            • Grand line
            • Grand Line Блок-хаус Amerika D4,8
            • Grand Line Tundra
            • Grand Line Amerika D4.4
            • Grand Line Amerika D4 (slim)
            • Grand Line Акриловый (АСА)
            • Доборные элементы
            • Софиты Grand Line Т4
            • Софиты Grand Line Premium Estetic
          • Дачный
            • Назад
            • Дачный
            • H-профиль (соединитель) FineBer Дачный
          • Фурнитура для сайдинга (эконом)
            • Назад
            • Фурнитура для сайдинга (эконом)
            • Эконом
        • ФАСАДНЫЕ ПАНЕЛИ
          • Назад
          • ФАСАДНЫЕ ПАНЕЛИ
          • Фасадные панели Альта-Профиль
            • Назад
            • Фасадные панели Альта-Профиль
            • Кирпич антик
            • Камень скалистый
            • Гранит
            • Каньон
            • Фасадная плитка
            • Камень бутовый
            • Кирпич коричневый
            • Камень коричневый
            • Фагот
            • Кирпич клинкерный
            • Коллекция Пражский камень
            • Коллекция Венеция
            • Коллекция Венецианский камень
            • Коллекция Неаполитанский камень
            • Коллекция Флорентийский камень
            • Камень Шотландский
            • Кирпич Рижский
            • Комби
            • Неаполь
            • Туф
            • Шотландия
            • Общая фурнитура к фасадным панелям
            • Система отделки углов Альта Профиль
            • Камень серый
            • Кирпич красный
          • Фасадные панели FineBer
            • Назад
            • Фасадные панели FineBer
            • Камень
            • Камень дикий
            • Камень крупный
            • Камень природный
            • Кирпич
            • Скала
          • Фасадные панели Docke-R
            • Назад
            • Фасадные панели Docke-R
            • Flemish
            • Edel
            • Berg
            • Burg
            • Stein
            • Klinker
            • Fels
            • Stern
            • Аксессуары
            • Slate
          • Фасадные панели Фасайдинг "Дачный"
            • Назад
            • Фасадные панели Фасайдинг "Дачный"
            • КИРПИЧ КЛИНКЕРНЫЙ Фасайдинг "Дачный"
            • СКАЛА Фасайдинг "Дачный"
            • БАВАРСКИЙ КИРПИЧ Фасайдинг "Дачный"
            • ДОЛОМИТ Фасайдинг "Дачный"
            • СКОЛ 3D-Facture Фасайдинг "Дачный"
            • ТУФ 3D-Facture Фасайдинг "Дачный"
          • Фасадные панели Grand Line
            • Назад
            • Фасадные панели Grand Line
            • Клинкерный кирпич
            • Крупный камень
            • Состаренный кирпич
            • Сланец
            • Grand Line Аксессуары к Фасадной панели
            • "Я-Фасад" Крымский Сланец
            • "Я-Фасад" Сибирская Дранка
            • "Я-Фасад" Екатерининский Камень
            • "Я-Фасад" Демидовский Кирпич
            • "Я-Фасад" Скала
        • ВОДОСТОЧНАЯ СИСТЕМА
          • Назад
          • ВОДОСТОЧНАЯ СИСТЕМА
          • Grand Line
          • FINEBER
        • ПВХ ПЛИТКА
          • Назад
          • ПВХ ПЛИТКА
          • ПВХ плитка Tarkett
            • Назад
            • ПВХ плитка Tarkett
            • PROGRESSIVE HOUSE
            • Blues
            • Lounge
            • New Age
        • ГИПСОКАРТОН И ПРОФИЛИ
        • СУХИЕ СМЕСИ
        • ТЕРРАСНАЯ ДОСКА ДПК EuroDeck
          • Назад
          • ТЕРРАСНАЯ ДОСКА ДПК EuroDeck
          • Доборные элементы и крепёж
          • Планка универсальная ДПК
          • DOUBLE
          • New
          • Old Style
          • Uno
          • Уголок торцевой
      • Акции
      • О компании
      • Бренды
      • Оплата
      • Доставка и самовывоз
      • Статьи
      • Контакты
      • Личный кабинет
      • Корзина0
      • Избранные товары0
      • Сравнение товаров0
      • +7 495 324-00-05
      Контактная информация
      Москва, Новорязанское ш. 25км, строение 16, павильон К3
      zakaz@remycom.ru

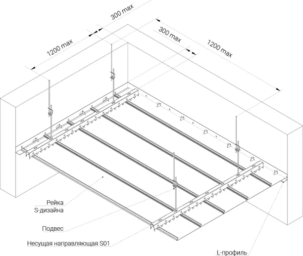
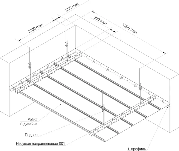
      Реечный потолок французский "S" Дизайн

      28
      Главная
      —
      Каталог
      —
      Подвесной потолок
      ЛИКВИДАЦИЯ ОСТАТКОВСТЕНОВЫЕ ПАНЕЛИСВЕТИЛЬНИКИ ДЛЯ ПОТОЛКОВЛАМИНАТКВАРЦ-ВИНИЛОВЫЙ ЛАМИНАТПАРКЕТНАЯ ДОСКАПОДЛОЖКА ПОД ЛАМИНАТ И ПАРКЕТПЛИНТУССТОЛЕШНИЦЫ ИЗ ДСП СОЮЗКУХОННЫЕ ФАРТУКИ ИЗ МДФ СОЮЗПОДОКОННИКИ ПВХВИНИЛОВЫЙ САЙДИНГФАСАДНЫЕ ПАНЕЛИВОДОСТОЧНАЯ СИСТЕМАТЕРРАСНАЯ ДОСКА ДПК EuroDeckСУХИЕ СМЕСИГИПСОКАРТОН И ПРОФИЛИПВХ ПЛИТКА
      —
      Реечные потолки
      Потолочная плита АрмстронгКассетные подвесные потолкиПодвесной потолок ГрильятоКомплектующие для подвесных потолков
      —
      Реечный потолок французский "S" Дизайн
      Комплекты реечных потолковРеечный потолок АлбесПотолки реечные алюминиевые Реечные потолки для ванной
      Реечный потолок французский
      Фильтр
      По популярности (убывание)
      По популярности (убывание)
      По популярности (возрастание)
      По цене (убывание)
      По цене (возрастание)
      Фильтр
      Сортировка
      По популярности (возрастание)
      • По популярности (убывание)
      • По популярности (возрастание)
      • По цене (убывание)
      • По цене (возрастание)
      Цена
      Цена
      445
      624
      802
      981
      1 159
      Бренд
      Материал
      Длина, мм
      Ширина, мм
      Влагостойкость
      Тип помещения
      ?Примечание
      Уточните для какого помещения подбираете
      Дизайн
      ?Примечание
      Выберите текстуру дизайна
      Оттенки
      ?Примечание
      Выберите подходящий оттенок
      Цвет
      ?Примечание
      Выберите подходящий цвет
      Материал
      ?Примечание
      Выберите материал реечного потолка
      Покрытие
      ?Примечание
      Выберите покрытие
      Выбрано 0 Показать
      Выбрано 0 Показать
      Гребенка (стрингер), длина 4м Гребенка (стрингер), длина 4м, продажа по цене 445 руб. Характеристики, фото, описание и отзывы. Действуют акции и скидки. Доставка по Москве и области ☎️ 8 (495) 324-00-05 Ремиком
      Гребенка (стрингер), длина 4м
      В наличии
      Арт.: 5626
      445 руб.
      /шт
      В корзинуВ корзине
      Рейка S дизайн БЕЛАЯ МАТОВАЯ 4000х100 №3306 Рейка S дизайн БЕЛАЯ МАТОВАЯ 4000х100 №3306, продажа по цене 637 руб. Характеристики, фото, описание и отзывы. Действуют акции и скидки. Доставка по Москве и области ☎️ 8 (495) 324-00-05 Ремиком Рейка S дизайн БЕЛАЯ МАТОВАЯ 4000х100 №3306, продажа по цене 637 руб. Характеристики, фото, описание и отзывы. Действуют акции и скидки. Доставка по Москве и области ☎️ 8 (495) 324-00-05 Ремиком
      Рейка S дизайн БЕЛАЯ МАТОВАЯ 4000х100 №3306
      В наличии
      Арт.: 5623
      637 руб.
      /шт
      В корзинуВ корзине
      Рейка S дизайн БЕЛАЯ МАТОВАЯ 4000х150 №3306 Рейка S дизайн БЕЛАЯ МАТОВАЯ 4000х150 №3306, продажа по цене 868 руб. Характеристики, фото, описание и отзывы. Действуют акции и скидки. Доставка по Москве и области ☎️ 8 (495) 324-00-05 Ремиком Рейка S дизайн БЕЛАЯ МАТОВАЯ 4000х150 №3306, продажа по цене 868 руб. Характеристики, фото, описание и отзывы. Действуют акции и скидки. Доставка по Москве и области ☎️ 8 (495) 324-00-05 Ремиком
      Рейка S дизайн БЕЛАЯ МАТОВАЯ 4000х150 №3306
      В наличии
      Арт.: 5624
      868 руб.
      /шт
      В корзинуВ корзине
      Рейка S дизайн МЕТАЛЛИК С ХРОМИРОВАННОЙ ПОЛОСОЙ 3000х150 Е04 Рейка S дизайн МЕТАЛЛИК С ХРОМИРОВАННОЙ ПОЛОСОЙ 3000х150 Е04, продажа по цене 870 руб. Характеристики, фото, описание и отзывы. Действуют акции и скидки. Доставка по Москве и области ☎️ 8 (495) 324-00-05 Ремиком Рейка S дизайн МЕТАЛЛИК С ХРОМИРОВАННОЙ ПОЛОСОЙ 3000х150 Е04, продажа по цене 870 руб. Характеристики, фото, описание и отзывы. Действуют акции и скидки. Доставка по Москве и области ☎️ 8 (495) 324-00-05 Ремиком Рейка S дизайн МЕТАЛЛИК С ХРОМИРОВАННОЙ ПОЛОСОЙ 3000х150 Е04, продажа по цене 870 руб. Характеристики, фото, описание и отзывы. Действуют акции и скидки. Доставка по Москве и области ☎️ 8 (495) 324-00-05 Ремиком
      Рейка S дизайн МЕТАЛЛИК С ХРОМИРОВАННОЙ ПОЛОСОЙ 3000х150 Е04
      В наличии
      Арт.: 5676
      870 руб.
      /шт
      В корзинуВ корзине
      Рейка S дизайн ЖЕМЧУЖНО-БЕЛЫЙ 3000х100 C01 Рейка S дизайн ЖЕМЧУЖНО-БЕЛЫЙ 3000х100 C01, продажа по цене 578 руб. Характеристики, фото, описание и отзывы. Действуют акции и скидки. Доставка по Москве и области ☎️ 8 (495) 324-00-05 Ремиком Рейка S дизайн ЖЕМЧУЖНО-БЕЛЫЙ 3000х100 C01, продажа по цене 578 руб. Характеристики, фото, описание и отзывы. Действуют акции и скидки. Доставка по Москве и области ☎️ 8 (495) 324-00-05 Ремиком
      Рейка S дизайн ЖЕМЧУЖНО-БЕЛЫЙ 3000х100 C01
      В наличии
      Арт.: 5500
      578 руб.
      /шт
      В корзинуВ корзине
      Рейка S дизайн ЖЕМЧУЖНО БЕЛЫЙ С ХРОМИРОВАННОЙ ПОЛОСОЙ 4000х100 Е01 Рейка S дизайн ЖЕМЧУЖНО БЕЛЫЙ С ХРОМИРОВАННОЙ ПОЛОСОЙ 4000х100 Е01, продажа по цене 852 руб. Характеристики, фото, описание и отзывы. Действуют акции и скидки. Доставка по Москве и области ☎️ 8 (495) 324-00-05 Ремиком Рейка S дизайн ЖЕМЧУЖНО БЕЛЫЙ С ХРОМИРОВАННОЙ ПОЛОСОЙ 4000х100 Е01, продажа по цене 852 руб. Характеристики, фото, описание и отзывы. Действуют акции и скидки. Доставка по Москве и области ☎️ 8 (495) 324-00-05 Ремиком
      Рейка S дизайн ЖЕМЧУЖНО БЕЛЫЙ С ХРОМИРОВАННОЙ ПОЛОСОЙ 4000х100 Е01
      В наличии
      Арт.: 5672
      852 руб.
      /шт
      В корзинуВ корзине
      Рейка S дизайн ЖЕМЧУЖНО БЕЛЫЙ С ХРОМИРОВАННОЙ ПОЛОСОЙ 3000х150 Е01 Рейка S дизайн ЖЕМЧУЖНО БЕЛЫЙ С ХРОМИРОВАННОЙ ПОЛОСОЙ 3000х150 Е01, продажа по цене 870 руб. Характеристики, фото, описание и отзывы. Действуют акции и скидки. Доставка по Москве и области ☎️ 8 (495) 324-00-05 Ремиком Рейка S дизайн ЖЕМЧУЖНО БЕЛЫЙ С ХРОМИРОВАННОЙ ПОЛОСОЙ 3000х150 Е01, продажа по цене 870 руб. Характеристики, фото, описание и отзывы. Действуют акции и скидки. Доставка по Москве и области ☎️ 8 (495) 324-00-05 Ремиком
      Рейка S дизайн ЖЕМЧУЖНО БЕЛЫЙ С ХРОМИРОВАННОЙ ПОЛОСОЙ 3000х150 Е01
      В наличии
      Арт.: 5673
      870 руб.
      /шт
      В корзинуВ корзине
      Рейка S дизайн ЖЕМЧУЖНО-БЕЛЫЙ 4000х150 C01 Рейка S дизайн ЖЕМЧУЖНО-БЕЛЫЙ 4000х150 C01, продажа по цене 1 104 руб. Характеристики, фото, описание и отзывы. Действуют акции и скидки. Доставка по Москве и области ☎️ 8 (495) 324-00-05 Ремиком Рейка S дизайн ЖЕМЧУЖНО-БЕЛЫЙ 4000х150 C01, продажа по цене 1 104 руб. Характеристики, фото, описание и отзывы. Действуют акции и скидки. Доставка по Москве и области ☎️ 8 (495) 324-00-05 Ремиком
      Рейка S дизайн ЖЕМЧУЖНО-БЕЛЫЙ 4000х150 C01
      В наличии
      Арт.: 5503
      1 104 руб.
      /шт
      В корзинуВ корзине
      Рейка S дизайн ЖЕМЧУЖНО-БЕЛЫЙ 3000х150 C01 Рейка S дизайн ЖЕМЧУЖНО-БЕЛЫЙ 3000х150 C01, продажа по цене 828 руб. Характеристики, фото, описание и отзывы. Действуют акции и скидки. Доставка по Москве и области ☎️ 8 (495) 324-00-05 Ремиком Рейка S дизайн ЖЕМЧУЖНО-БЕЛЫЙ 3000х150 C01, продажа по цене 828 руб. Характеристики, фото, описание и отзывы. Действуют акции и скидки. Доставка по Москве и области ☎️ 8 (495) 324-00-05 Ремиком
      Рейка S дизайн ЖЕМЧУЖНО-БЕЛЫЙ 3000х150 C01
      В наличии
      Арт.: 5502
      828 руб.
      /шт
      В корзинуВ корзине
      Рейка S дизайн МЕТАЛЛИК С ХРОМИРОВАННОЙ ПОЛОСОЙ 4000х100 Е04 Рейка S дизайн МЕТАЛЛИК С ХРОМИРОВАННОЙ ПОЛОСОЙ 4000х100 Е04, продажа по цене 852 руб. Характеристики, фото, описание и отзывы. Действуют акции и скидки. Доставка по Москве и области ☎️ 8 (495) 324-00-05 Ремиком Рейка S дизайн МЕТАЛЛИК С ХРОМИРОВАННОЙ ПОЛОСОЙ 4000х100 Е04, продажа по цене 852 руб. Характеристики, фото, описание и отзывы. Действуют акции и скидки. Доставка по Москве и области ☎️ 8 (495) 324-00-05 Ремиком Рейка S дизайн МЕТАЛЛИК С ХРОМИРОВАННОЙ ПОЛОСОЙ 4000х100 Е04, продажа по цене 852 руб. Характеристики, фото, описание и отзывы. Действуют акции и скидки. Доставка по Москве и области ☎️ 8 (495) 324-00-05 Ремиком
      Рейка S дизайн МЕТАЛЛИК С ХРОМИРОВАННОЙ ПОЛОСОЙ 4000х100 Е04
      В наличии
      Арт.: 5675
      852 руб.
      /шт
      В корзинуВ корзине
      Рейка S дизайн ЖЕМЧУЖНО БЕЛЫЙ С ХРОМИРОВАННОЙ ПОЛОСОЙ 4000х150 Е01 Рейка S дизайн ЖЕМЧУЖНО БЕЛЫЙ С ХРОМИРОВАННОЙ ПОЛОСОЙ 4000х150 Е01, продажа по цене 1 159 руб. Характеристики, фото, описание и отзывы. Действуют акции и скидки. Доставка по Москве и области ☎️ 8 (495) 324-00-05 Ремиком Рейка S дизайн ЖЕМЧУЖНО БЕЛЫЙ С ХРОМИРОВАННОЙ ПОЛОСОЙ 4000х150 Е01, продажа по цене 1 159 руб. Характеристики, фото, описание и отзывы. Действуют акции и скидки. Доставка по Москве и области ☎️ 8 (495) 324-00-05 Ремиком
      Рейка S дизайн ЖЕМЧУЖНО БЕЛЫЙ С ХРОМИРОВАННОЙ ПОЛОСОЙ 4000х150 Е01
      В наличии
      Арт.: 5674
      1 159 руб.
      /шт
      В корзинуВ корзине
      Рейка S дизайн МЕТАЛЛИК С ХРОМИРОВАННОЙ ПОЛОСОЙ 4000х150 Е04 Рейка S дизайн МЕТАЛЛИК С ХРОМИРОВАННОЙ ПОЛОСОЙ 4000х150 Е04, продажа по цене 1 159 руб. Характеристики, фото, описание и отзывы. Действуют акции и скидки. Доставка по Москве и области ☎️ 8 (495) 324-00-05 Ремиком Рейка S дизайн МЕТАЛЛИК С ХРОМИРОВАННОЙ ПОЛОСОЙ 4000х150 Е04, продажа по цене 1 159 руб. Характеристики, фото, описание и отзывы. Действуют акции и скидки. Доставка по Москве и области ☎️ 8 (495) 324-00-05 Ремиком Рейка S дизайн МЕТАЛЛИК С ХРОМИРОВАННОЙ ПОЛОСОЙ 4000х150 Е04, продажа по цене 1 159 руб. Характеристики, фото, описание и отзывы. Действуют акции и скидки. Доставка по Москве и области ☎️ 8 (495) 324-00-05 Ремиком
      Рейка S дизайн МЕТАЛЛИК С ХРОМИРОВАННОЙ ПОЛОСОЙ 4000х150 Е04
      В наличии
      Арт.: 5677
      1 159 руб.
      /шт
      В корзинуВ корзине
      Рейка S дизайн БЕЛАЯ МАТОВАЯ 3000х150 №3306 Рейка S дизайн БЕЛАЯ МАТОВАЯ 3000х150 №3306, продажа по цене 650 руб. Характеристики, фото, описание и отзывы. Действуют акции и скидки. Доставка по Москве и области ☎️ 8 (495) 324-00-05 Ремиком Рейка S дизайн БЕЛАЯ МАТОВАЯ 3000х150 №3306, продажа по цене 650 руб. Характеристики, фото, описание и отзывы. Действуют акции и скидки. Доставка по Москве и области ☎️ 8 (495) 324-00-05 Ремиком
      Рейка S дизайн БЕЛАЯ МАТОВАЯ 3000х150 №3306
      В наличии
      Арт.: 1923
      650 руб.
      /шт
      В корзинуВ корзине
      Рейка S дизайн БЕЛАЯ МАТОВАЯ 3000х100 №3306 Рейка S дизайн БЕЛАЯ МАТОВАЯ 3000х100 №3306, продажа по цене 478 руб. Характеристики, фото, описание и отзывы. Действуют акции и скидки. Доставка по Москве и области ☎️ 8 (495) 324-00-05 Ремиком Рейка S дизайн БЕЛАЯ МАТОВАЯ 3000х100 №3306, продажа по цене 478 руб. Характеристики, фото, описание и отзывы. Действуют акции и скидки. Доставка по Москве и области ☎️ 8 (495) 324-00-05 Ремиком
      Рейка S дизайн БЕЛАЯ МАТОВАЯ 3000х100 №3306
      В наличии
      Арт.: 1922
      478 руб.
      /шт
      В корзинуВ корзине
      Рейка S дизайн ЖЕМЧУЖНО-БЕЛЫЙ 4000х100 C01 Рейка S дизайн ЖЕМЧУЖНО-БЕЛЫЙ 4000х100 C01, продажа по цене 770 руб. Характеристики, фото, описание и отзывы. Действуют акции и скидки. Доставка по Москве и области ☎️ 8 (495) 324-00-05 Ремиком Рейка S дизайн ЖЕМЧУЖНО-БЕЛЫЙ 4000х100 C01, продажа по цене 770 руб. Характеристики, фото, описание и отзывы. Действуют акции и скидки. Доставка по Москве и области ☎️ 8 (495) 324-00-05 Ремиком
      Рейка S дизайн ЖЕМЧУЖНО-БЕЛЫЙ 4000х100 C01
      В наличии
      Арт.: 5501
      770 руб.
      /шт
      В корзинуВ корзине
      Рейка S дизайн БЕЖЕВЫЙ ШТРИХ 3000х100 №210 Рейка S дизайн БЕЖЕВЫЙ ШТРИХ 3000х100 №210, продажа по цене 639 руб. Характеристики, фото, описание и отзывы. Действуют акции и скидки. Доставка по Москве и области ☎️ 8 (495) 324-00-05 Ремиком Рейка S дизайн БЕЖЕВЫЙ ШТРИХ 3000х100 №210, продажа по цене 639 руб. Характеристики, фото, описание и отзывы. Действуют акции и скидки. Доставка по Москве и области ☎️ 8 (495) 324-00-05 Ремиком
      Рейка S дизайн БЕЖЕВЫЙ ШТРИХ 3000х100 №210
      В наличии
      Арт.: 1918
      639 руб.
      /шт
      В корзинуВ корзине
      Рейка S дизайн ЖЕМЧУЖНО БЕЛЫЙ С ХРОМИРОВАННОЙ ПОЛОСОЙ 3000х100 Е01 Рейка S дизайн ЖЕМЧУЖНО БЕЛЫЙ С ХРОМИРОВАННОЙ ПОЛОСОЙ 3000х100 Е01, продажа по цене 639 руб. Характеристики, фото, описание и отзывы. Действуют акции и скидки. Доставка по Москве и области ☎️ 8 (495) 324-00-05 Ремиком Рейка S дизайн ЖЕМЧУЖНО БЕЛЫЙ С ХРОМИРОВАННОЙ ПОЛОСОЙ 3000х100 Е01, продажа по цене 639 руб. Характеристики, фото, описание и отзывы. Действуют акции и скидки. Доставка по Москве и области ☎️ 8 (495) 324-00-05 Ремиком
      Рейка S дизайн ЖЕМЧУЖНО БЕЛЫЙ С ХРОМИРОВАННОЙ ПОЛОСОЙ 3000х100 Е01
      В наличии
      Арт.: 5671
      639 руб.
      /шт
      В корзинуВ корзине
      Рейка S дизайн БЕЖЕВЫЙ ШТРИХ 4000х100 №210 Рейка S дизайн БЕЖЕВЫЙ ШТРИХ 4000х100 №210, продажа по цене 852 руб. Характеристики, фото, описание и отзывы. Действуют акции и скидки. Доставка по Москве и области ☎️ 8 (495) 324-00-05 Ремиком Рейка S дизайн БЕЖЕВЫЙ ШТРИХ 4000х100 №210, продажа по цене 852 руб. Характеристики, фото, описание и отзывы. Действуют акции и скидки. Доставка по Москве и области ☎️ 8 (495) 324-00-05 Ремиком
      Рейка S дизайн БЕЖЕВЫЙ ШТРИХ 4000х100 №210
      В наличии
      Арт.: 1920
      852 руб.
      /шт
      В корзинуВ корзине
      Рейка S дизайн РОГОЖКА ТЕМНАЯ 3000х100 B832 Рейка S дизайн РОГОЖКА ТЕМНАЯ 3000х100 B832, продажа по цене 616 руб. Характеристики, фото, описание и отзывы. Действуют акции и скидки. Доставка по Москве и области ☎️ 8 (495) 324-00-05 Ремиком Рейка S дизайн РОГОЖКА ТЕМНАЯ 3000х100 B832, продажа по цене 616 руб. Характеристики, фото, описание и отзывы. Действуют акции и скидки. Доставка по Москве и области ☎️ 8 (495) 324-00-05 Ремиком
      Рейка S дизайн РОГОЖКА ТЕМНАЯ 3000х100 B832
      В наличии
      Арт.: 1930
      616 руб.
      /шт
      В корзинуВ корзине
      Рейка S дизайн БЕЖЕВЫЙ ШТРИХ 4000х150 №210 Рейка S дизайн БЕЖЕВЫЙ ШТРИХ 4000х150 №210, продажа по цене 1 159 руб. Характеристики, фото, описание и отзывы. Действуют акции и скидки. Доставка по Москве и области ☎️ 8 (495) 324-00-05 Ремиком Рейка S дизайн БЕЖЕВЫЙ ШТРИХ 4000х150 №210, продажа по цене 1 159 руб. Характеристики, фото, описание и отзывы. Действуют акции и скидки. Доставка по Москве и области ☎️ 8 (495) 324-00-05 Ремиком
      Рейка S дизайн БЕЖЕВЫЙ ШТРИХ 4000х150 №210
      В наличии
      Арт.: 1921
      1 159 руб.
      /шт
      В корзинуВ корзине
      Показать еще
      1 2
      Каталог
      • ЛИКВИДАЦИЯ ОСТАТКОВ ЛИКВИДАЦИЯ ОСТАТКОВ
        • Ламинат Ламинат
        • Панели ПВХ Панели ПВХ
          • Распродажа ламинированных панелий В-пласт
      • СТЕНОВЫЕ ПАНЕЛИ СТЕНОВЫЕ ПАНЕЛИ
        • ПАНЕЛИ ПВХ ПАНЕЛИ ПВХ
          • Витопласт
          • 3D UNIQUE Кронапласт
          • Ламинированные Декопласт
          • Для ванной
          • Для кухни
          • Потолочные
          • Белые
          • РАСПРОДАЖА | термоперевод
          • Сэндвич
          • Профили
        • ПАНЕЛИ МДФ ПАНЕЛИ МДФ
          • Для кухни
          • Для ванной
          • Кроностар
          • Евростар
          • Комплектующие
        • ЛИСТОВЫЕ ПАНЕЛИ ИЗ МДФ ЛИСТОВЫЕ ПАНЕЛИ ИЗ МДФ
          • Влагостойкие панели под ПЛИТКУ и МРАМОР "СТИЛЬНЫЙ ДОМ"
          • Стеновые под КИРПИЧ и КАМЕНЬ "СТИЛЬНЫЙ ДОМ"
          • Стеновые под ДОСКУ И РЕЙКУ "СТИЛЬНЫЙ ДОМ"
          • Стеновые из МДФ DPI (США)
          • Листовые МДФ влагостойкие для ванной
        • ВЛАГОСТОЙКИЕ СТЕНОВЫЕ ПАНЕЛИ ВЛАГОСТОЙКИЕ СТЕНОВЫЕ ПАНЕЛИ
      • ПОДВЕСНЫЕ ПОТОЛКИ ПОДВЕСНЫЕ ПОТОЛКИ
        • Потолочная плита Армстронг Потолочная плита Армстронг
        • Кассетные подвесные потолки Кассетные подвесные потолки
        • Подвесной потолок Грильято Подвесной потолок Грильято
        • Реечные потолки Реечные потолки
          • Комплекты реечных потолков
          • Реечный потолок Албес
          • Реечный потолок французский "S" Дизайн
          • Потолки реечные алюминиевые
          • Реечные потолки для ванной
        • Комплектующие для подвесных потолков Комплектующие для подвесных потолков
      • СВЕТИЛЬНИКИ ДЛЯ ПОТОЛКОВ СВЕТИЛЬНИКИ ДЛЯ ПОТОЛКОВ
      • ЛАМИНАТ ЛАМИНАТ
        • DERBY Style DERBY Style
        • Kronon MODERN Kronon MODERN
        • Kronostar Kronostar
          • GALAXY 32 КЛАСС
          • DE FACTO 33 класс
          • SALZBURG 33 КЛАСС
          • SYMBIO 33 КЛАСС
          • SYNCHRO-TEC 33 КЛАСС
        • Kronotex Kronotex
          • DYNAMIC PLUS
          • EXQUISIT
          • EXQUISIT PLUS
          • MEGA PLUS
          • AMAZONE
          • ROBUSTO
          • MAMMUT PLUS
          • MAMMUT
          • AQUA ROBUSTO
          • HERRINGBONE
        • Floorwood Floorwood
          • Expert
          • Epica
          • Maxima
          • Estet
          • Profile
          • Serious
        • Kastamonu Kastamonu
          • Floorpan Blue
          • Floorpan Yellow
        • Sommer by Tarkett Sommer by Tarkett
          • Germany 832
        • Kronospan Kronospan
          • Castello 832
          • Floordreams Vario 1233
          • Super Natural Classic v4 833
          • Variostep Classic 832
          • Vintage Classic 1033
          • Vintage Narrow 1033
        • Tarkett Tarkett
          • Robinson 833
          • Artisan 933
          • Cruise
          • Dynasty
          • Estetica
          • Intermezzo 833
          • Navigator 1233
          • Ballet 833
          • Cinema 832
          • Gallery 1233
          • Pilot 1033
        • Egger Egger
          • CLASSIC 8/32
          • CLASSIC 8/32 4V (с фаской)
          • CLASSIC 8/33
          • CLASSIC AQUA+ 8/32
          • LARGE 8/32
          • KINGSIZE 8/32
          • KINGSIZE AQUA+ 8/32
          • MEDIUM 10/32
          • CLASSIC 12/33
        • Balterio Balterio
          • FORTISSIMO
          • IMPRESSIO
          • MAGNITUDE
          • QUATTRO VINTAGE
          • STRETTO
        • Kronopol Kronopol
          • Sound
      • КВАРЦ-ВИНИЛОВЫЙ ЛАМИНАТ КВАРЦ-ВИНИЛОВЫЙ ЛАМИНАТ
        • Ламинат CronaFloor Ламинат CronaFloor
          • CronaFloor STONE
          • CronaFloor WOOD
          • CronaFloor NANO
          • CronaFloor HERRINGBONE
        • Ламинат ALPINE FLOOR Ламинат ALPINE FLOOR
          • Alpine floor SOLO
          • Alpine floor GRAND SEQUOIA
          • Alpine floor STONE MINERAL CORE
          • Alpine floor EXPRESSIVE PARQUET
          • Alpine floor PARQUET LIGHT
          • Alpine floor INTENSE
          • Alpine floor PREMIUM XL
          • Alpine floor CLASSIC
          • Alpine floor SEQUOIA
          • Alpine floor REAL WOOD
      • ПАРКЕТНАЯ ДОСКА ПАРКЕТНАЯ ДОСКА
        • Паркетная доска Tarkett Паркетная доска Tarkett
          • Rumba
          • Salsa Premium
          • Salsa
          • Samba
          • Tango
          • Tango Art
          • Salsa Art
        • Паркетная доска Синтерос Паркетная доска Синтерос
          • Europarquet
          • Europlank
      • ПОДЛОЖКА ПОД ЛАМИНАТ И ПАРКЕТ ПОДЛОЖКА ПОД ЛАМИНАТ И ПАРКЕТ
      • ПЛИНТУС ПЛИНТУС
        • Пластиковые плинтуса IDEAL Komfort Пластиковые плинтуса IDEAL Komfort
        • Фурнитура для плинтуса Фурнитура для плинтуса
      • СТОЛЕШНИЦЫ ИЗ ДСП СОЮЗ СТОЛЕШНИЦЫ ИЗ ДСП СОЮЗ
        • Коллекция Universal Коллекция Universal
        • Коллекция Classic Коллекция Classic
        • Коллекция Standart Pro Коллекция Standart Pro
        • Коллекция Premium Коллекция Premium
        • Коллекция Premium + Коллекция Premium +
        • Фурнитура для столешниц Фурнитура для столешниц
      • КУХОННЫЕ ФАРТУКИ ИЗ МДФ СОЮЗ КУХОННЫЕ ФАРТУКИ ИЗ МДФ СОЮЗ
      • ПОДОКОННИКИ ПВХ ПОДОКОННИКИ ПВХ
        • Подоконники МАСТЕРПЛАСТ Подоконники МАСТЕРПЛАСТ
        • Подоконники Danke Подоконники Danke
          • Подоконник Danke Premium
          • Подоконник Danke Standart
          • Подоконники Danke Komfort
          • Комплектующие для подоконников Danke
        • Фурнитура для подоконников Фурнитура для подоконников
      • ВИНИЛОВЫЙ САЙДИНГ ВИНИЛОВЫЙ САЙДИНГ
        • Fineber Fineber
          • Fineber Standart
          • Fineber BlockHouse
          • Фурнитура Fineber
          • Софиты Fineber
        • Альта-Профиль Альта-Профиль
          • Kanada Плюс Премиум
          • Kanada Плюс Престиж
          • Альта-Профиль BlockHouse
          • Альта-Сайдинг (длина 3,66м)
          • Вспененный сайдинг Альта-Борд
          • Kanada Плюс Люкс
          • "Аляска" Классик
          • Альта-Профиль Софит
          • Доборные элементы
        • Docke Docke
          • Виниловый Сайдинг Docke D4D серия Standart
          • Сайдинг Docke D5C серия Standart Елочка
          • Сайдинг Docke D4.5D серия Premium
          • Сайдинг Docke серия Premium профилированный брус D6S
          • Виниловый сайдинг Docke Блок Хаус D4.7T серия Premium
          • Универсальные аксессуары серий Premium и Standart
          • Серия LUX Брус D6S
          • Блок Хаус D4.7T серия LUX
          • Софит Т4 Premium
          • Софит Т4 Docke Standard
          • Софит Т4 Lux 
          • Доборные элементы серия LUX
        • Grand line Grand line
          • Grand Line Блок-хаус Amerika D4,8
          • Grand Line Tundra
          • Grand Line Amerika D4.4
          • Grand Line Amerika D4 (slim)
          • Grand Line Акриловый (АСА)
          • Доборные элементы
          • Софиты Grand Line Т4
          • Софиты Grand Line Premium Estetic
        • Дачный Дачный
          • H-профиль (соединитель) FineBer Дачный
        • Фурнитура для сайдинга (эконом) Фурнитура для сайдинга (эконом)
          • Эконом
      • ФАСАДНЫЕ ПАНЕЛИ ФАСАДНЫЕ ПАНЕЛИ
        • Фасадные панели Альта-Профиль Фасадные панели Альта-Профиль
          • Кирпич антик
          • Камень скалистый
          • Гранит
          • Каньон
          • Фасадная плитка
          • Камень бутовый
          • Кирпич коричневый
          • Камень коричневый
          • Фагот
          • Кирпич клинкерный
          • Коллекция Пражский камень
          • Коллекция Венеция
          • Коллекция Венецианский камень
          • Коллекция Неаполитанский камень
          • Коллекция Флорентийский камень
          • Камень Шотландский
          • Кирпич Рижский
          • Комби
          • Неаполь
          • Туф
          • Шотландия
          • Общая фурнитура к фасадным панелям
          • Система отделки углов Альта Профиль
          • Камень серый
          • Кирпич красный
        • Фасадные панели FineBer Фасадные панели FineBer
          • Камень
          • Камень дикий
          • Камень крупный
          • Камень природный
          • Кирпич
          • Скала
        • Фасадные панели Docke-R Фасадные панели Docke-R
          • Flemish
          • Edel
          • Berg
          • Burg
          • Stein
          • Klinker
          • Fels
          • Stern
          • Аксессуары
          • Slate
        • Фасадные панели Фасайдинг "Дачный" Фасадные панели Фасайдинг "Дачный"
          • КИРПИЧ КЛИНКЕРНЫЙ Фасайдинг "Дачный"
          • СКАЛА Фасайдинг "Дачный"
          • БАВАРСКИЙ КИРПИЧ Фасайдинг "Дачный"
          • ДОЛОМИТ Фасайдинг "Дачный"
          • СКОЛ 3D-Facture Фасайдинг "Дачный"
          • ТУФ 3D-Facture Фасайдинг "Дачный"
        • Фасадные панели Grand Line Фасадные панели Grand Line
          • Клинкерный кирпич
          • Крупный камень
          • Состаренный кирпич
          • Сланец
          • Grand Line Аксессуары к Фасадной панели
          • "Я-Фасад" Крымский Сланец
          • "Я-Фасад" Сибирская Дранка
          • "Я-Фасад" Екатерининский Камень
          • "Я-Фасад" Демидовский Кирпич
          • "Я-Фасад" Скала
      • ВОДОСТОЧНАЯ СИСТЕМА ВОДОСТОЧНАЯ СИСТЕМА
        • Grand Line Grand Line
        • FINEBER FINEBER
      • ПВХ ПЛИТКА ПВХ ПЛИТКА
        • ПВХ плитка Tarkett ПВХ плитка Tarkett
          • PROGRESSIVE HOUSE
          • Blues
          • Lounge
          • New Age
      • ГИПСОКАРТОН И ПРОФИЛИ ГИПСОКАРТОН И ПРОФИЛИ
      • СУХИЕ СМЕСИ СУХИЕ СМЕСИ
      • ТЕРРАСНАЯ ДОСКА ДПК EuroDeck ТЕРРАСНАЯ ДОСКА ДПК EuroDeck
        • Доборные элементы и крепёж Доборные элементы и крепёж
        • Планка универсальная ДПК Планка универсальная ДПК
        • DOUBLE
        • New
        • Old Style
        • Uno Uno
        • Уголок торцевой
      Будьте в курсе наших акций и новостей
      Подписаться
      Письмо руководителю
      Задать вопрос
      Статьи
      Советы по выбору ПВХ панелей для стен и потолка
      Реечные потолки и их преимущества
      Что такое МДФ?
      Преимущества винилового сайдинга перед металлическим
      Как выбрать МДФ панели?
      Подготовка пола для укладки ламината
      Все статьи
      Каталог
      Акции
      О компании
      Бренды
      Оплата и доставка
      Статьи
      Контакты
      +7 495 324-00-05
      zakaz@remycom.ru
      Москва, Новорязанское ш. 25км, строение 16, павильон К3
      Подписаться на рассылку
      Политика конфиденциальности
      Соглашение на обработку персональных данных
      Соглашение на обработку cookies
      2026 © RemyCom.ru
      Каталог
      По всему сайту
      По каталогу
      Сайт использует cookie-файлы для удобства пользователя.
      Вы можете отключить их в настройках браузера.
      Подробнее — в Политике использования Cookies.
      Принять условия